製品情報
会社概要
ネットワーク
サポート★
お客様お問い合わせ
集中潤滑(オイル・グリス)製品・
システム相談センター
メンテナンスサポート
(エア抜き・フィルター交換・ポンプエレメント交換など)
検索
世界標準 LHLシステム・グリス潤滑システム
オイル潤滑システム
配管部品
生産完了品
システムレイアウト
世界標準LHL集中潤滑システム
乾電池駆動グリスキット
グリスシステム 主配管脱圧方式
グリスシステム 進行方式
グリスシステム_進行方式 マルチポート集中給脂システム
リューベ純正潤滑剤
RECOG 再使用型容器
周辺機器
システムレイアウト
定量方式
抵抗方式
ルブフィット加工油シリーズ
タンク
周辺機器
エアー駆動式
オイルポンプ消耗品
配管接続 部品
配管材
パイプクリップ
フレキシブル ホース
ジャンクション
アダプター
コネクター
狭所配管用継手
カップリング
LUBEインスタントコネクター
塗布ブラシ
高圧継手
回転継手
ジェット ノズル
ノズルアダプター
吐出確認 ピン
ラインチェック・バルブ
生産完了品
Home
製品情報
世界標準 LHLシステム・グリス潤滑システム
周辺機器
ポンプ取付板
新旧代替商品のご案内 >
世界標準 LHLシステム・グリス潤滑システム
周辺機器
ポンプ取付板
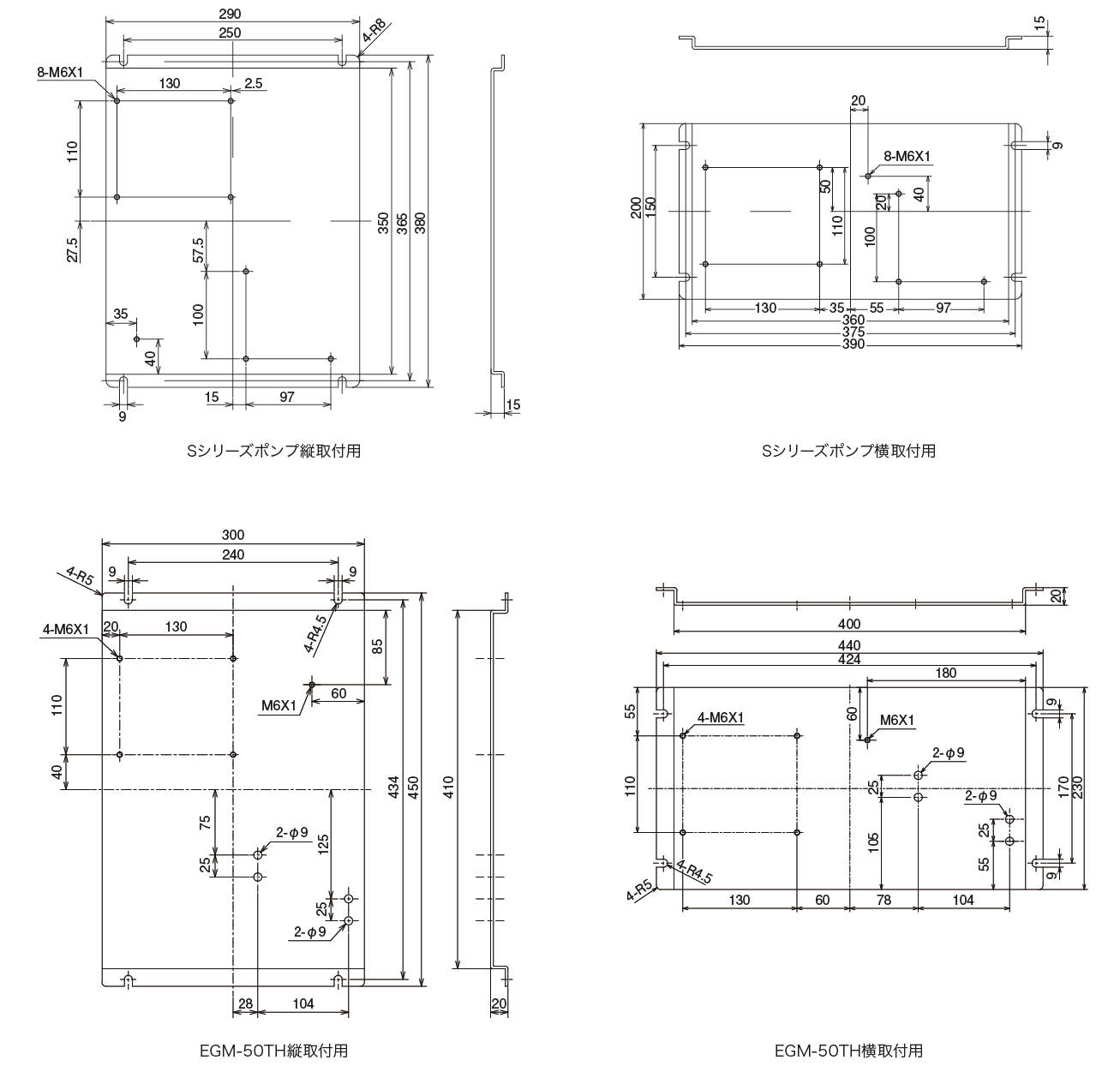
型式
型式
コードNO.
Sシリーズポンプ縦取付用
531155
Sシリーズポンプ横取付用
531187
EGM-50TH縦取付用
531355
EGM-50TH横取付用
531356
外形寸法図
関連製品